Na eni najbolj prepoznavnih in zgodovinsko bogatih lokacij stare Ljubljane, v stavbi vpeti med Gallusovo nabrežje na eni in Stari trg na drugi strani, posredujemo pri prodaji ekskluzivnega 3,5-sobnega stanovanja.
Nahaja se v 1. nadstropju staro meščanske stavbe z dvigalom in je trenutno v zaključni fazi temeljitih vzdrževalnih del, izvedenih z izjemno pozornostjo do detajlov in spoštovanjem kulturne dediščine.
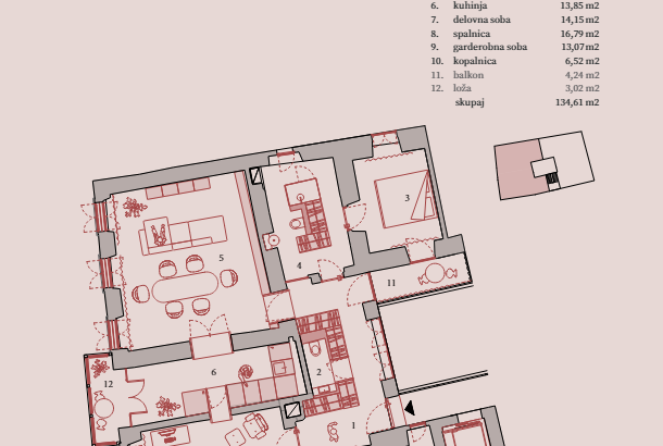
Unikatno stanovanje, edino z balkonom, ki ima odprt pogled na Ljubljanico in Gallusovo nabrežje. Stanovanje ima zahodno lego in meri 134,61 m2. Tlorisna zasnova ohranja idejo baročnih meščanskih stanovanj, je lahko prilagodljiva in obsega: predprostor z garderobo, 2 spalnici, garderobni prostor, 2 kopalnici, dnevni prostor z jedilnico, kuhinjo, delovno sobo, dnevni WC.
Za ogrevanje sanitarne vode ter stanovanja (talno gretje) bo v stanovanju nameščena kondenzacijska plinska peč, z možno reguliranja po posamičnih prostorih, za ohlajanje bo nameščena klima, ter lokalne rekuperacijske enote za izmenjavo zraka. Pametne instalacije bodo omogočale daljinsko upravljanje ogrevanja, svetil, prezračevanje in tudi varnosti dostopa. Nova okna – replika obstoječih – lesena, dvojna okna (notranje okno termopan, beljena smreka, zunanje enojno, macesen) z vgrajenimi komarniki in senčili, Inline notranja vrata s skritimi nasadili v kombinaciji z dvojnimi baročnimi vrati, vrhunski gotovi parket uveljavljenega italijanskega proizvajalca - in rezultat je popolna harmonija med zgodovinskim šarmom in udobjem sodobnega bivanja.
Ekskluzivna lokacija ob Ljubljanici velja za eno najbolj zaželenih, saj se v neposredni bližini nahajajo mnoge kulturne in zgodovinske znamenitosti povezane z urbanim mestnim utripom. Enostaven dostop do številnih kavarn, restavracij, trgovin, lekarne, knjižnice, vrtcev ter šol. Parkiranje je za lastnike stanovanj, v neposredni bližini omogočeno z mestno dovolilnico, prav tako je mogoče najeti parkirno mesto v bližnjih parkirnih hišah (Kongresni trg, Šumi).
Možnosti nakupa:
Redka priložnost za kupce, ki iščejo unikaten dom v srcu stare Ljubljane.
Kupec ne plača agencijske provizije. Pogoj prodajalca je, da kupec, v primeru realizacije prodaje/nakupa nepremičnine, plača davek na promet z nepremičninami, v višini 2% od pogodbeno dogovorjene cene.
