Na eni najbolj prepoznavnih in zgodovinsko bogatih lokacij stare Ljubljane, posredujemo pri prodaji obnovljenega 3-sobnega stanovanja.
Nahaja se v 1. nadstropju staro meščanske stavbe z dvigalom in je trenutno v zaključni fazi obnovitvenih del, pri čemer so uporabljeni prvovrstni materiali in sodobne rešitve, ki spoštujejo arhitekturno in kulturno dediščino objekta.
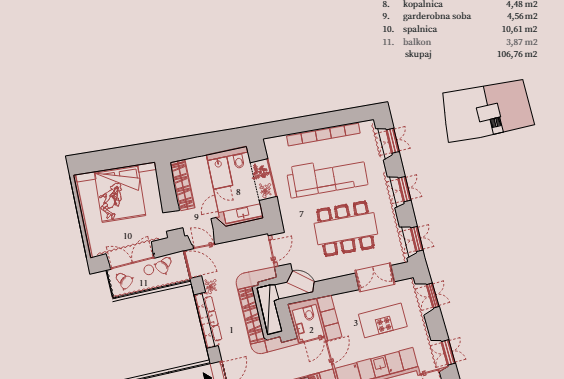
Stanovanje obsega 106,76 m2 in ima vzhodno lego ter pogled na Stari trg. Tloris obsega dnevno bivalni prostor z jedilnico in kuhinjo, 2 spalnici, garderobno sobo, 2 kopalnici, dnevni WC, vstopno avlo z garderobo in balkon obrnjen v notranji atrij.
Stanovanje bo imelo lastno kondenzacijsko plinsko peč za ogrevanje sanitarne vode in stanovanja – talno gretje, z možno regulacijo po posamičnih prostorih. Vgrajen bo prezračevalni sistem z lokalnimi rekuperacijskimi enotami, za ohlajanje bo nameščena klima. Prav tako bo stanovanje opremljeno s pametnimi instalacijami, ki bodo omogočale daljinsko upravljanje ogrevanja, svetil, prezračevanje in varnosti dostopa. Skladno z varstvom kulturne dediščine bodo zamenjana tudi okna – replika obstoječih – lesena, dvojna okna (notranje okno termopan, beljena smreka, zunanje enojno, macesen) z vgrajenimi komarniki in senčili. Inline notranja vrata s skritimi nasadili bodo v sožitju z dvojnimi baročnimi vrati in vrhunskim gotovim parketom italijanskega proizvajalca dala stanovanju sofisticiran in moderen dizajn.
Ekskluzivna lokacija v starem mestnem jedru Ljubljane velja za eno najbolj zaželenih, saj se v neposredni bližini nahajajo mnoge kulturne in zgodovinske znamenitosti povezane z urbanim mestnim utripom. Enostaven dostop do številnih kavarn, restavracij, trgovin, lekarne, knjižnice, vrtcev ter šol. Parkiranje je za lastnike stanovanj, v neposredni bližini omogočeno z mestno dovolilnico, prav tako je mogoče najeti parkirno mesto v bližnjih parkirnih hišah (Kongresni trg, Šumi).
Možnosti nakupa:
Priložnost za tiste, ki iščete unikaten dom v srcu Ljubljane.
Kupec ne plača agencijske provizije. Pogoj prodajalca je, da kupec, v primeru realizacije prodaje/nakupa nepremičnine, plača davek na promet z nepremičninami, v višini 2% od pogodbeno dogovorjene cene.
