
VERIŽNE HIŠE VIČ – SODOBNO BIVANJE V LJUBLJANI
V Ljubljani na Viču v sodobno zasnovani soseski, ki obsega 17 verižnih hiš petih različnih tipov oziroma velikosti prodamo vrstno hišo v 4.gr.fazi
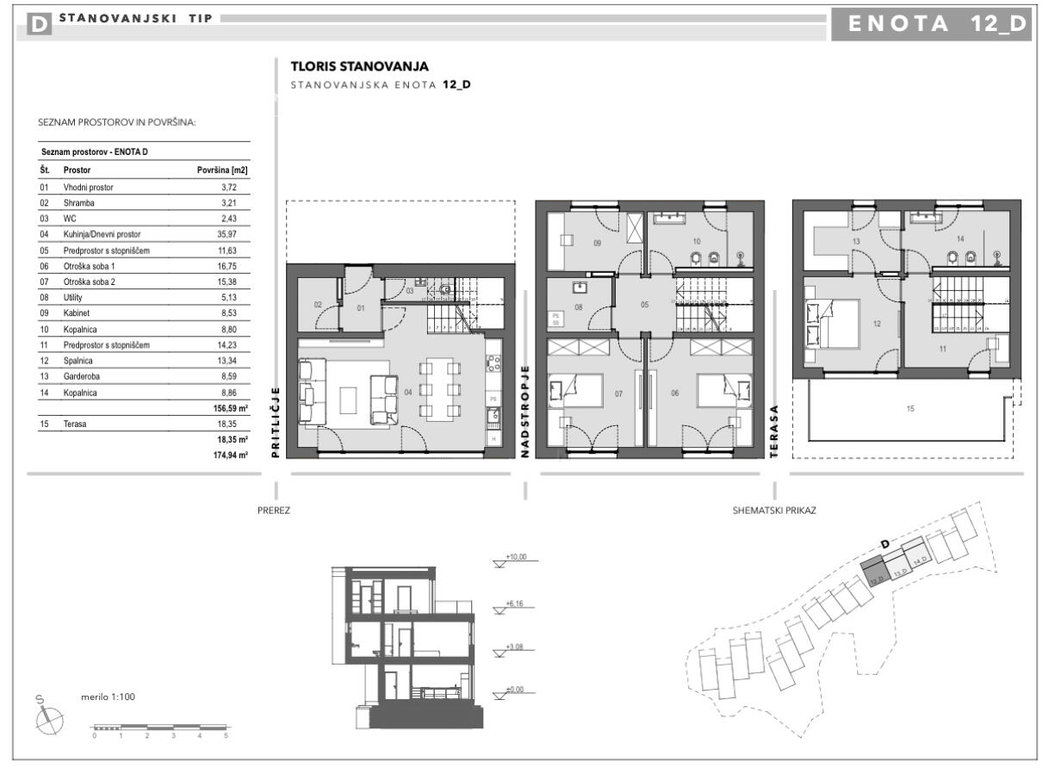
Na voljo je samo še zadnja enota – D14
Cena: 750.000 EUR
Notranja razporeditev hiše
Zasnova hiše je premišljena do potankosti, saj omogoča maksimalno izkoriščenost prostora, udobje in zasebnost.
Hiša obsega tri etaže:
Okolica hiše in parkiranje
Način in faza gradnje
Hiše so grajene iz kakovostnih, nadstandardnih in trajnostnih materialov, z velikim poudarkom na energetski učinkovitosti in nizkih stroških bivanja.
Hiše so zgrajene do 4. gradbene faze (izvedene inštalacije za vodo, ogrevanje, hlajenje, prezračevanje, elektriko). Možnost dokončanja »na ključ« po dogovoru.
Lokacija in infrastruktura
Nepremičnina se nahaja v mirnem in urejenem naselju, v neposredni bližini vse pomembne infrastrukture:
Odlične možnosti za rekreacijo (PST, kolesarjenje)
AC priključek Ljubljana Vič: manj kot 1 km
Center Ljubljane: cca 2 km
POGOJ PRODAJE: Pogoj prodajalca je, da kupec v primeru realizacije prodaje/nakupa nepremičnine, povrne strošek agencijske provizije v višini 2 % od pogodbeno dogovorjene cene + DDV.
Kontakt
Za več informacij ali dogovor za ogled me kontaktirajte:
UROŠ ZIDARIČ – NEST nepremičnine
+386 40 733 001
uros@nest.si
