
Sodobna novogradnja na Krasu – vaš novi dom v Opatjem selu
Na izjemni lokaciji v naselju Opatje Selo pri Komnu, na zahodnem robu slovenskega Krasa tik ob meji z Italijo, sta naprodaj dve enoti v dvostanovanjski hiši, ki združuje sodobno arhitekturo, energetsko učinkovitost in mirno kraško okolje.
Gre za novogradnjo (pričetek gradnje 2024) etažnosti P+1, gradnja je že zaključena in prevzem je možen takoj. Enota obsega skupno 189,09 m², od tega 120 m² premišljeno zasnovanih bivalnih površin, ter pripadajoče zemljišče v velikosti približno 362 m².
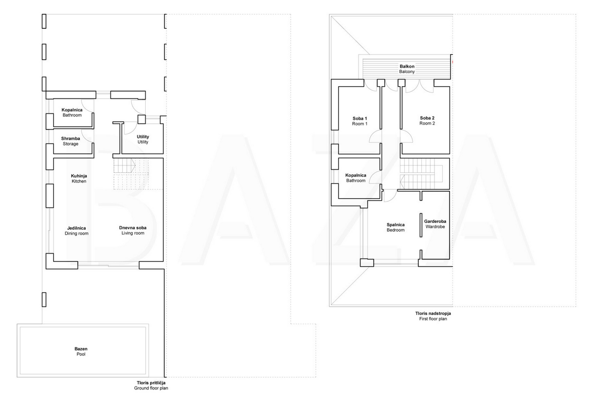
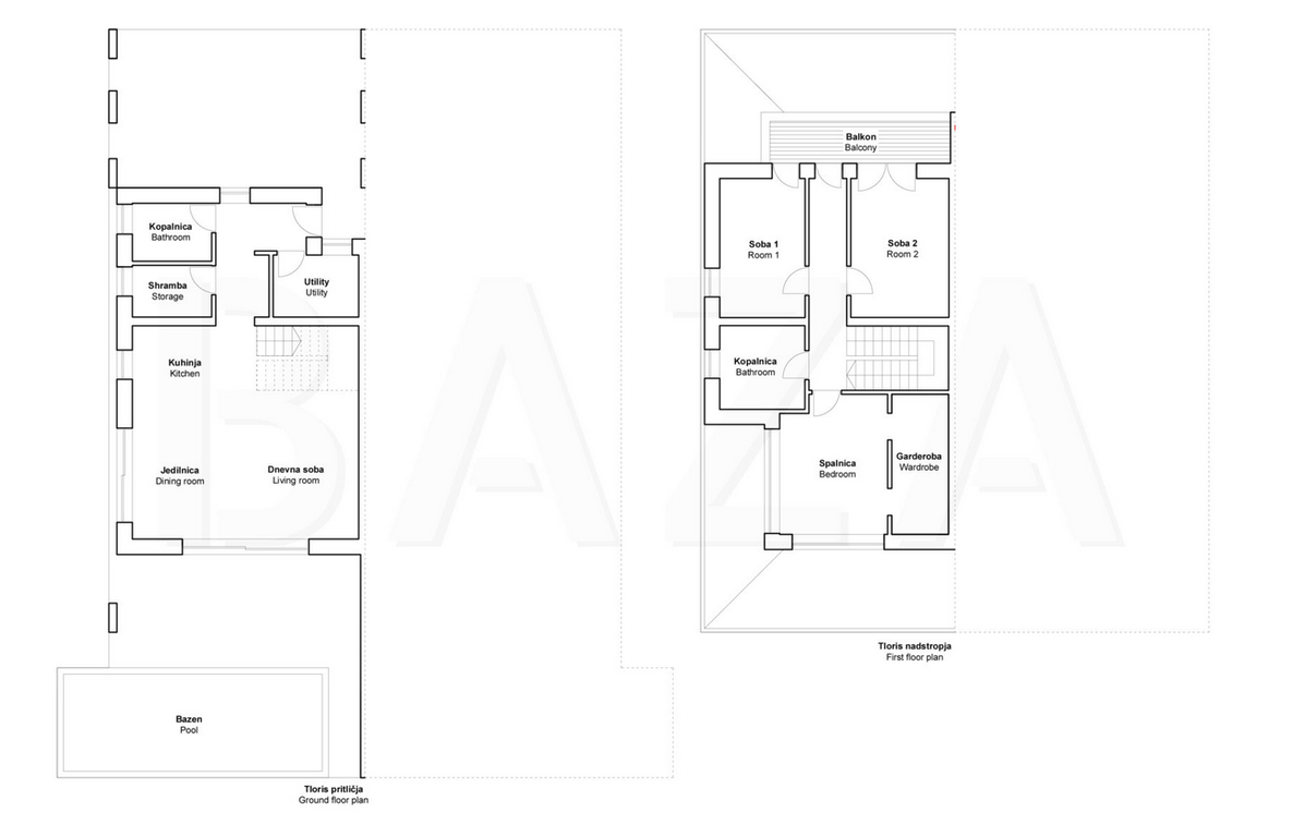
Premišljena razporeditev prostorov
Pritličje:
Nadstropje:
Dnevni del z južno orientacijo omogoča obilico naravne svetlobe skozi vse leto, medtem ko so spalni prostori umeščeni na severno stran za več zasebnosti in prijetnejšo klimo.
Gradnja višjega standarda
Hiša je zasnovana kot nizkoenergijski objekt in grajena iz kakovostnih materialov:
Vsaki enoti pripada približno 165 m² zelenih površin ter urejeno tlakovano dvorišče s pokritim parkiriščem za dve vozili.
Objekt bo priključen na vodovod, elektriko, kanalizacijo in optično omrežje.
Lokacija, ki ponuja ravnovesje
Opatje Selo navdušuje s svojo kraško pokrajino, vinogradi, kamnitimi hišami in prijetnim podeželskim ritmom življenja. Lokacija omogoča hitro povezavo do obale, Italije ter večjih mestnih središč, hkrati pa nudi popoln umik od mestnega vrveža. Okolica je idealna za ljubitelje pohodništva, kolesarjenja in bivanja v naravi.
Ključne informacije
Nepremičnina predstavlja odlično priložnost za vse, ki iščejo sodoben, energetsko učinkovit dom v varnem in urejenem okolju Krasa – bodisi za stalno bivanje bodisi kot kakovostno investicijo.
Za vse dodatne informacije smo vam na voljo na tel.št: 031 236 617 ali na info@nest.si .
V oglasu so priložene vizualizacije možne notranje in zunanje ureditve, ki ponazarjajo potencial doma.
